
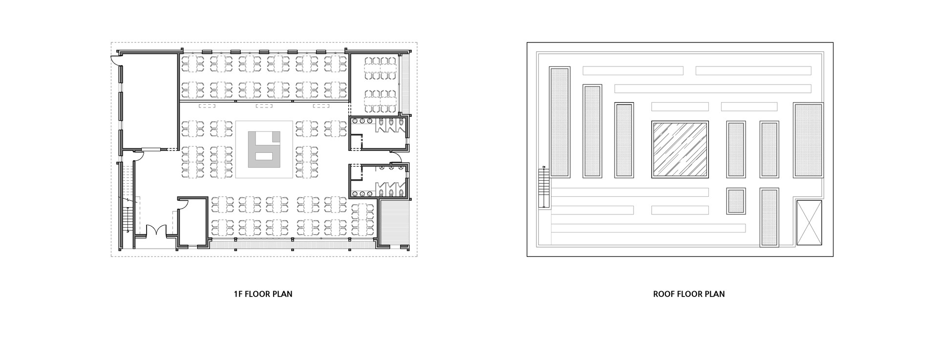
청주시 청원군 오창읍에 설계한 보리밥 집과 카페는 애국심이 깊은 건축주의 의뢰로 시작된 특별한 프로젝트다.
2,000평이 넘는 대지는 진입도로와 최고 지점 사이의 20m에 달하는 고저차를 극복해야 했고, 건물 배치와 대규모 주차장 확보는 설계 과정에서 풀어야 할 중요한 숙제였다.
건축주의 대한민국을 사랑하는 마음을 담아내기 위해 태극기의 네 괘인 건(乾), 곤(坤), 감(坎), 리(離)를 공간 속에 담아 냈다.
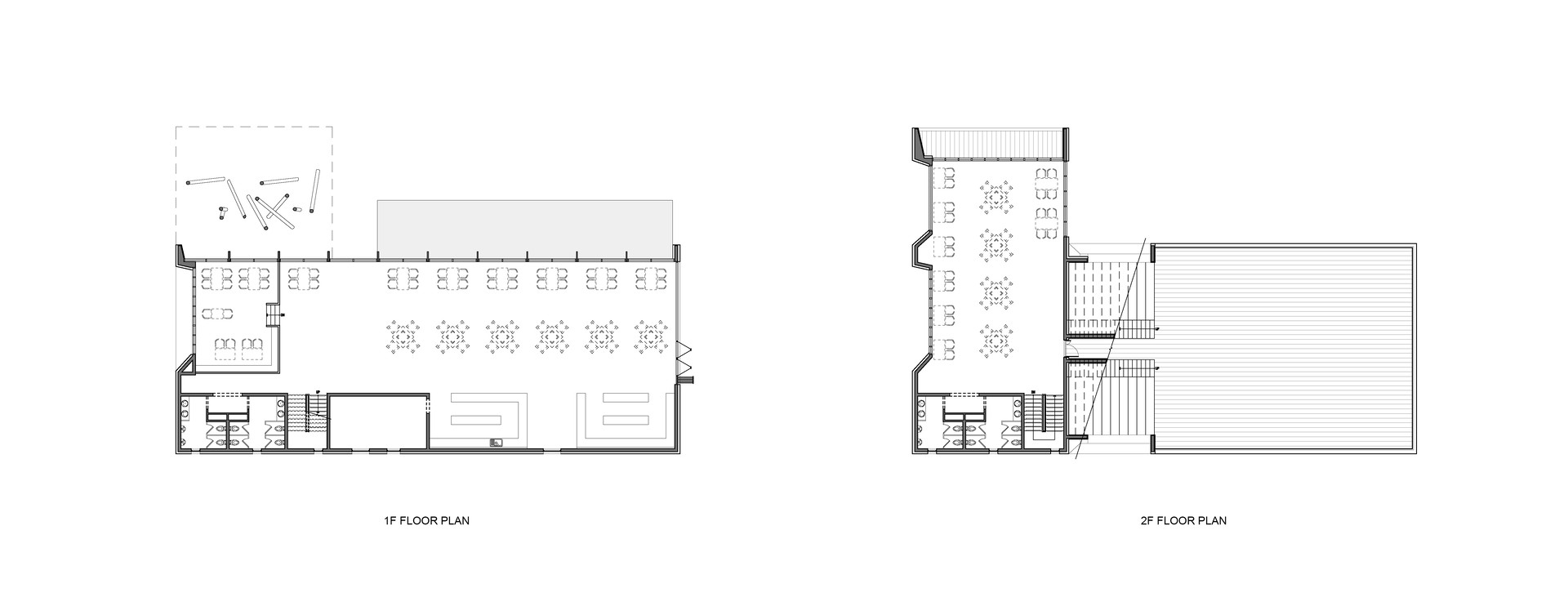
건(乾, 하늘)은 보리밥 집 내부에서 하늘을 바라볼 수 있는 창과 대청마루에 누워 사계절의 하늘을 느낄 수 있는 공간으로 구현했으며, 카페 옥상에서는 하늘을 바라보며 보리밥 집을 감상 할 수 있도록 했다. 곤(坤, 땅)은 보리밥 집 옥상에 실제 보리를 심어 방문객이 직접 만지고 느낄 수 있도록 했으며, 카페 2층을 지탱하는 기둥은 다양한 각도로 배열해 숲을 연상케 했다. 감(坎, 물)의 요소는 카페와 어우러진 수공간을 만들었으며, 리(離, 불)은 따뜻한 조명을 더해 건축물에 밝고 온화한 분위기를 불어넣었다.
전통 한옥의 아름다움과 태극기의 상징을 현대적 건축 언어로 재해석한 보리밥 집과 카페는 단순한 식음 공간을 넘어 애국심과 철학을 품은 건축으로 완성되었다.
The Barley Rice Restaurant and Café in Ochang-eup, Cheongwon-gu, Cheongju, was a special project commissioned by a client whose deep patriotism set it apart from others.
The expansive 6,957.00㎡ site posed a significant challenge, with a 20-meter elevation difference between the access road and the highest point of the land. Overcoming this topography, while ensuring proper building placement and sufficient parking for visitors, became one of the key tasks in the design process.
To embody the client’s love for Korea, the design drew inspiration from the four trigrams of the Taegeukgi
—Geon (Heaven), Gon ( Earth), Gam (Water), and Ri (Fire)—and reinterpreted them through architectural form.
Geon (Heaven) was expressed through windows framing the sky from inside the restaurant and a wooden hall (daecheong-maru) where visitors could lie down and experience the changing skies of the four seasons. From the café rooftop, guests could look up at the sky while enjoying views of the restaurant itself.
Gon (Earth) was represented by planting barley on the restaurant’s rooftop, allowing visitors to touch and feel the crops firsthand, while the angled columns supporting the café’s second floor evoked the image of a forest.
Gam (Water) took shape in the water features integrated with the café.
Ri (Fire) was embodied through warm lighting, filling both the restaurant and café with brightness and a welcoming atmosphere.
By reinterpreting the symbolism of the Taegeukgi and the beauty of traditional Hanok in a contemporary architectural language, the Barley Rice Restaurant and Café was envisioned not merely as a dining space, but as a work of architecture imbued with patriotism and philosophy.
위치: 청주시 창원군 오창읍
용도: 제2종 근린생활시설 - 일반음식점
대지면적: 6,957.00㎡
건축면적: 481.95㎡(보리밥 집)
연면적: 469.34㎡(보리밥 집)
규모: 지상1층(보리밥 집)
구조: 철근콘크리트구조
Location: Ochang-eup, Cheongwon-gu, Cheongju
Usage: Restaurant and Cafe
Site Area: 6,957.00㎡
Building Area: 481.95㎡(Restaurant)
Tatal Floor Area: 469.34㎡(Restaurant)
Building Scale: One-story building(Restaurant)
Structure: Reinforced Concrete Structure
세